中古戸建て
オーナーチェンジ物件! 地下部分に倉庫付き!
登録日/2023年11月21日 更新日/2026年03月13日 次回更新予定日/随時
お問い合わせ番号/ 32658
中古戸建
800万円
兵庫県神戸市北区北五葉4丁目- 建物構造/階建
- 木造/2階建
- 築年月
- 【昭和52年】1977年08月 / 築48年
- 最寄駅
-
- 神戸電鉄粟生線
- 西鈴蘭台駅徒歩11分
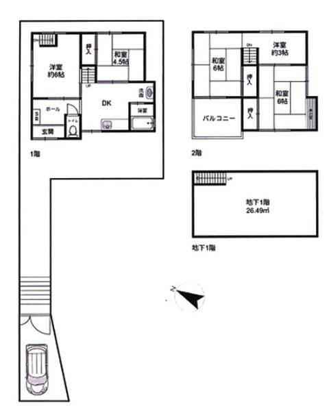
- 間取り/面積
-
- 間取り
- 5DK
- 土地面積
- 99.66m2 / 30.14坪
- 延床面積
- 94.05m2 / 28.45坪
- 延床面積1F
- 36.88m2
- 延床面積2F
- 30.68m2
-
- 学校区
-
- 小学校区
- 北五葉小学校 距離:407m
- 中学校区
- 鈴蘭台中学校 距離:498m
- 間取り詳細
-
階数 区分 広さ - 駐車場
-
- 駐車可能台数
- 有1台
- 駐車場所
- -
- 分譲駐車場
- -
- 駐車料金
- -
- 税
- -
- タイプ
- カースペース
- 公共設備
-
- ガス
- 都市ガス
- 水道
- 公営水道
- 汚水
- 公共下水
- 雑排水
- 公共下水
- 接道状況 他
-
- 向
- 一方
- 角地
- -
- 公道
- 西
- 幅員
- 6.00m
- 接面
- -
- 私道
-
- 私道
- -
- 持分
- -
- 面積(区分)
- -
- 面積
- -
- 面積(単位)
- -
- セットバック面積
-
- 状態
- -
- 幅
- -
- 面積
- -
- 現況
- 賃貸中
- 引渡時期
- 相談
--- - 地目
- 宅地
- 地勢
- -
- 用途地域
- 第一種低層住居専用地域
- - 建ぺい/容積率
- 50%/100%
- 都市計画
- 市街化区域
- 建築許可理由
- -
- 建築確認番号
- -
- リフォーム
- -
-
キッチン:-
浴槽:-
トイレ:-
壁:-
床:-
全室:-
その他:-
洗面所:-
給湯器:-
給排水管:-
内装全面:-
外壁:-
屋根:-
その他:- - リノベーション
- -
- - 土地権利
-
- 権利
- 所有権
- 備考
- -
- 権利金
- -
- 再建築
- -
- 国土法届出
- 不要
- その他制限事項
- -
備考:- - フラット利用
- -
- 手付金保証
- -
- 町会費
- --
- リボーン21
- -
- 備考
- -
- 取引態様
- 仲介
ローンシミュレーション
- 物件価格
- 800万円
- 金利
- 返済期間
-
年
※物件によってはローン年数が変わる場合がございます。
- 頭金
-
万円
※半角数字でご入力ください。
- ボーナス併用支払い
-
併用する
800.00万円のうちボーナス返済分
万円
※半角数字でご入力ください。
- 月割返済額
- ボーナス支払い額
(年2回)
※金利につきましては各金融機関の審査金利及び融資金利により異なります。
実際の返済額は結果と異なりますので、資産計画の目安としてご利用ください。
詳しいお問い合わせは、こちらよりご相談ください。
(社)全国宅地建物取引業保証協会
(社)近畿圏不動産流通機構
(社)近畿地区不動産公正取引協議会
(社)近畿圏不動産流通機構
(社)近畿地区不動産公正取引協議会












