新築戸建て 2期2号棟
新築戸建て 2号棟 性能評価取得(設計・建設)! 長期優良住宅! 省エネ住宅!
登録日/2025年12月12日 更新日/2026年01月25日 次回更新予定日/随時
お問い合わせ番号/ 35659
新築戸建
2,980万円
兵庫県神戸市北区道場町日下部- 建物構造/階建
- 木造/2階建
- 築年月
- 【令和8年】2026年05月 / 築0年
- 最寄駅
-
- 神戸電鉄三田線
- 神鉄道場駅徒歩8分
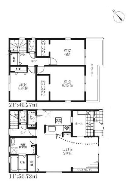
- 間取り/面積
-
- 間取り
- 3LDK
- 土地面積
- 160.05m2 / 48.41坪
- 延床面積
- 105.99m2 / 32.06坪
- 延床面積1F
- -
- 延床面積2F
- -
この物件の主な特徴
設計住宅性能評価有 建設住宅性能評価書有(新築時) 長期優良住宅認定通知書有 LDK広さ 18帖以上 駐車可能台数 2台可 24時間換気システム 床下収納 浄水器 シャンプードレッサー 浴室乾燥機 トイレ2ヶ所 温水洗浄便座 TVインターホン ※設備名をクリックで対象の設備の物件一覧を絞り込み-
- 学校区
-
- 小学校区
- 道場小学校 距離:1013m
- 中学校区
- 北神戸中学校 距離:1360m
- 間取り詳細
-
階数 区分 広さ - 駐車場
-
- 駐車可能台数
- 有2台
- 駐車場所
- -
- 分譲駐車場
- -
- 駐車料金
- -
- 税
- -
- タイプ
- -
- 公共設備
-
- ガス
- -
- 水道
- 公営水道
- 汚水
- 公共下水
- 雑排水
- -
- 接道状況 他
-
- 向
- 一方
- 角地
- -
- 公道
- 東
- 幅員
- 4.90m
- 接面
- -
- 私道
-
- 私道
- -
- 持分
- -
- 面積(区分)
- -
- 面積
- -
- 面積(単位)
- -
- セットバック面積
-
- 状態
- セットバック無
- 幅
- -
- 面積
- -
- 現況
- 建築中
- 引渡時期
- 期日指定
2026年6月下旬 - 地目
- 宅地
- 地勢
- -
- 用途地域
- 第一種低層住居専用地域
- - 建ぺい/容積率
- 40%/80%
- 都市計画
- 市街化区域
- 建築許可理由
- -
- 建築確認番号
- 第R07SHC121680号
- リフォーム
- -
-
キッチン:-
浴槽:-
トイレ:-
壁:-
床:-
全室:-
その他:-
洗面所:-
給湯器:-
給排水管:-
内装全面:-
外壁:-
屋根:-
その他:- - リノベーション
- -
- - 土地権利
-
- 権利
- 所有権
- 備考
- -
- 権利金
- -
- 再建築
- -
- 国土法届出
- 不要
- その他制限事項
- -
備考:- - フラット利用
- -
- 手付金保証
- -
- 町会費
- --
- リボーン21
- -
- 備考
- -
- 取引態様
- 仲介
ローンシミュレーション
- 物件価格
- 2,980万円
- 金利
- 返済期間
-
年
※物件によってはローン年数が変わる場合がございます。
- 頭金
-
万円
※半角数字でご入力ください。
- ボーナス併用支払い
-
併用する
2980.00万円のうちボーナス返済分
万円
※半角数字でご入力ください。
- 月割返済額
- ボーナス支払い額
(年2回)
※金利につきましては各金融機関の審査金利及び融資金利により異なります。
実際の返済額は結果と異なりますので、資産計画の目安としてご利用ください。
詳しいお問い合わせは、こちらよりご相談ください。
(社)全国宅地建物取引業保証協会
(社)近畿圏不動産流通機構
(社)近畿地区不動産公正取引協議会
(社)近畿圏不動産流通機構
(社)近畿地区不動産公正取引協議会















