中古戸建て
登録日/2025年12月16日 更新日/2026年01月27日 次回更新予定日/随時
お問い合わせ番号/ 35680
中古戸建
2,270万円
兵庫県神戸市北区花山中尾台3丁目- 建物構造/階建
- 木造/2階建
- 築年月
- 【平成19年】2007年01月 / 築19年
- 最寄駅
-
- 神戸電鉄有馬線
- 花山駅徒歩14分
- 神戸市北神線
- 谷上駅徒歩33分
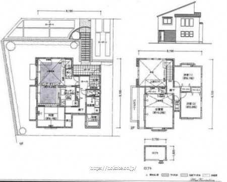
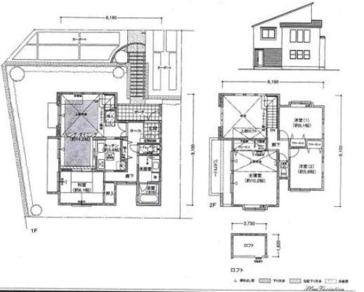
- 間取り/面積
-
- 間取り
- 4LDK
- 土地面積
- 209.30m2 / 63.31坪
- 延床面積
- 111.45m2 / 33.71坪
- 延床面積1F
- 62.93m2
- 延床面積2F
- 48.52m2
この物件の主な特徴
2沿線以上利用可 振分 ロフト 上水道 公営 汚水 下水道 ガス 都市ガス フローリング 出窓 24時間換気システム 収納スペース 床下収納 システムキッチン カウンターキッチン シャンプードレッサー バス広さ 1坪以上 追い焚き シャワー トイレ2ヶ所 TVインターホン ディンプルキー ※設備名をクリックで対象の設備の物件一覧を絞り込み-
- 学校区
-
- 小学校区
- 花山小学校 距離:1852m
- 中学校区
- 大池中学校 距離:989m
- 間取り詳細
-
階数 区分 広さ - 駐車場
-
- 駐車可能台数
- 有-
- 駐車場所
- -
- 分譲駐車場
- -
- 駐車料金
- -
- 税
- -
- タイプ
- -
- 公共設備
-
- ガス
- 都市ガス
- 水道
- 公営水道
- 汚水
- 公共下水
- 雑排水
- -
- 接道状況 他
-
- 向
- 二方
- 角地
- 角地
- 私道
-
- 私道
- -
- 持分
- -
- 面積(区分)
- -
- 面積
- -
- 面積(単位)
- -
- セットバック面積
-
- 状態
- -
- 幅
- -
- 面積
- -
- 現況
- 居住中
- 引渡時期
- 相談
--- - 地目
- 宅地
- 地勢
- -
- 用途地域
- 第一種低層住居専用地域
- - 建ぺい/容積率
- 60%/80%
- 都市計画
- 市街化区域
- 建築許可理由
- -
- 建築確認番号
- -
- リフォーム
- -
-
キッチン:-
浴槽:-
トイレ:-
壁:-
床:-
全室:-
その他:-
洗面所:-
給湯器:-
給排水管:-
内装全面:-
外壁:-
屋根:-
その他:- - リノベーション
- -
- - 土地権利
-
- 権利
- 所有権
- 備考
- -
- 権利金
- -
- 再建築
- -
- 国土法届出
- 不要
- その他制限事項
- -
備考:- - フラット利用
- -
- 手付金保証
- -
- 町会費
- --
- リボーン21
- -
- 備考
- -
- 取引態様
- 仲介
ローンシミュレーション
- 物件価格
- 2,270万円
- 金利
- 返済期間
-
年
※物件によってはローン年数が変わる場合がございます。
- 頭金
-
万円
※半角数字でご入力ください。
- ボーナス併用支払い
-
併用する
2270.00万円のうちボーナス返済分
万円
※半角数字でご入力ください。
- 月割返済額
- ボーナス支払い額
(年2回)
※金利につきましては各金融機関の審査金利及び融資金利により異なります。
実際の返済額は結果と異なりますので、資産計画の目安としてご利用ください。
詳しいお問い合わせは、こちらよりご相談ください。
(社)全国宅地建物取引業保証協会
(社)近畿圏不動産流通機構
(社)近畿地区不動産公正取引協議会
(社)近畿圏不動産流通機構
(社)近畿地区不動産公正取引協議会













