今月までの成約には新品家電セット付の物件。 梶井文化
登録日/2020年04月16日 更新日/2025年11月28日
お問い合わせ番号/ 24683c
アパート
賃料4.0万円
兵庫県神戸市北区鈴蘭台北町3丁目- 敷金/礼金
- 敷金なし / 礼金なし
- 管理費/共益費
- 0円 / 0円
- 築年月
- 【--】1977年01月 / 築48年
- 最寄駅
-
- 神戸電鉄有馬線
- 鈴蘭台駅徒歩9分
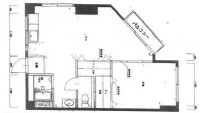
- 間取り
-
- 間取り
- 2DK
- 専有面積
- 29.16m2
- 階数/住階
- 2階 / 2階
敷礼ゼロ
この物件の主な特徴
駅徒歩 駅徒歩10分以内 コンロ口数 なし(ガスコンロ設置可) バストイレ 別 エアコン 有 室内洗濯機置場 ペット可否 相談 高齢者 相談 ※設備名をクリックで対象の設備の物件一覧を絞り込み- 保証金
- 更新料
- バルコニー面積
- -
- ペット備考
- -
- リフォーム
- - -
- 学校区
-
- 小学校区
- - 距離:-
- 中学校区
- - 距離:-
- 部屋向き
- -
- 借地権種類
- バイク置き場
-
- -
- 料金
- -
- 空き戸数/総戸数
- -/-
- 取引態様
- 仲介
- 備考
- -
- 敷引
- 保険料
- 20,000円
- ベランダ面積
- -
- テラス面積
- -
- 部屋番号:棟番号
- 2
- リノベーション
-
- -:-
- -
- 建物構造
- 木造
- 駐車場
-
- 無
- 駐車場料金
- -
- 駐車場空き台数
- -
- 近隣駐車場距離
- -
- 駐輪場
-
- -
- 料金
- -
- 現況
- 空き
- 引渡時期
-
- 相談
- ---
- 法令に基づくその他制限事項
- -
(社)全国宅地建物取引業保証協会
(社)近畿圏不動産流通機構
(社)近畿地区不動産公正取引協議会
(社)近畿圏不動産流通機構
(社)近畿地区不動産公正取引協議会
























