分譲マンションに空きが出ました! 大型スーパーに近く、買い物に便利です。 三宮まで直通バスがあり、通勤にも便利です! 神戸北町ソレアードコートB棟
登録日/2025年12月22日 更新日/2026年01月26日
お問い合わせ番号/ 26414c
マンション
賃料7.8万円
兵庫県神戸市北区桂木3丁目- 敷金/礼金
- 敷金なし / 78,000円
- 管理費/共益費
- 4,000円 / 0円
- 築年月
- 【--】1994年07月 / 築31年
- 最寄駅
-
- 東海道本線
- 三ノ宮駅
- 神戸電鉄有馬線
- 山の街駅徒歩17分
- 桂木2丁目バス停
- 徒歩7分
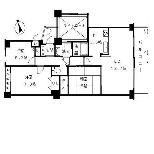
- 間取り
-
- 間取り
- 3LDK
- 専有面積
- 75.17m2
- 階数/住階
- 6階 / 4階
この物件の主な特徴
バルコニー バルコニー有 システムキッチン カウンターキッチン ガス 都市ガス ガスコンロ 給湯種類 都市ガス給湯 洗面所独立 洗面台 独立洗面台 洗面所に窓 洗面所にドア バストイレ 別 バス 専用 浴室に窓 トイレ 専用 エアコン 有 室内洗濯機置場 上水道 公営 汚水 下水道 ※設備名をクリックで対象の設備の物件一覧を絞り込み- 保証金
- 更新料
- バルコニー面積
- -
- ペット備考
- -
- リフォーム
- - -
- 学校区
-
- 小学校区
- 桂木小学校 距離:961m
- 中学校区
- 大原中学校 距離:1081m
- 部屋向き
- 東
- 借地権種類
- バイク置き場
-
- -
- 料金
- -
- 空き戸数/総戸数
- -/-
- 取引態様
- 仲介
- 備考
- 室内一部リフォーム予定につき、とても綺麗なお部屋です!
四季を感じられるエリアで人気です。
- 敷引
- 保険料
- ベランダ面積
- -
- テラス面積
- -
- 部屋番号:棟番号
- 409
- リノベーション
-
- -:-
- -
- 建物構造
- 鉄筋コンクリート造
- 駐車場
-
- 有り有料
- 駐車場料金
- 10000円
- 駐車場空き台数
- -
- 近隣駐車場距離
- -
- 駐輪場
-
- -
- 料金
- -
- 現況
- 空き
- 引渡時期
-
- 相談
- ---
- 法令に基づくその他制限事項
- -
(社)全国宅地建物取引業保証協会
(社)近畿圏不動産流通機構
(社)近畿地区不動産公正取引協議会
(社)近畿圏不動産流通機構
(社)近畿地区不動産公正取引協議会




















