★近隣駐車場あり(月額5,000円) 事務所使用可能! ワンルームKOYO
登録日/2020年06月18日 更新日/2026年03月02日
お問い合わせ番号/ 24771c
マンション
賃料2.3万円
兵庫県神戸市北区鈴蘭台北町7丁目- 敷金/礼金
- 0 / 礼金なし
- 管理費/共益費
- 5,000円 / 0円
- 築年月
- 【--】1984年03月 / 築42年
- 最寄駅
-
- 神戸電鉄有馬線
- 鈴蘭台駅徒歩15分
- 神戸電鉄有馬線
- 北鈴蘭台駅徒歩21分
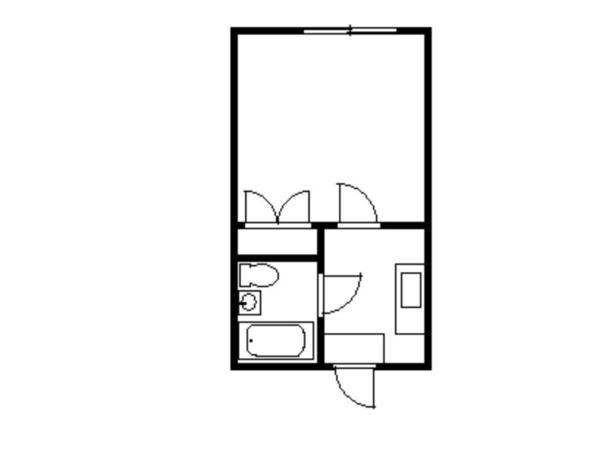
- 間取り
-
- 間取り
- 1K
- 専有面積
- 15.00m2
- 階数/住階
- 3階 / 3階
オススメ
この物件の主な特徴
ガス 都市ガス コンロ口数 なし(ガスコンロ設置可) バス 専用 トイレ 専用 エアコン 有 上水道 公営 クローゼット 礼金 不要 入居可能時期 即入居可 ※設備名をクリックで対象の設備の物件一覧を絞り込み- 保証金
- 30,000円
- 更新料
- バルコニー面積
- -
- ペット備考
- -
- リフォーム
- - -
- 学校区
-
- 小学校区
- 小部東小学校 距離:389m
- 中学校区
- 小部中学校 距離:270m
- 部屋向き
- 西
- 借地権種類
- バイク置き場
-
- -
- 料金
- -
- 空き戸数/総戸数
- -/-
- 取引態様
- 仲介
- 備考
- ※1年以内の解約及び契約解除等は賃料総額2ヶ月分相当、1年以内は2ヶ月分相当の短期解約違約金が発生します!
- 敷引
- 保険料
- ベランダ面積
- -
- テラス面積
- -
- 部屋番号:棟番号
- 301
- リノベーション
-
- -:-
- -
- 建物構造
- 鉄骨造
- 駐車場
-
- 近隣有
- 駐車場料金
- 5000円
- 駐車場空き台数
- -
- 近隣駐車場距離
- 170.00m
- 駐輪場
-
- -
- 料金
- -
- 現況
- 空き予定
- 引渡時期
-
- 期日指定
- 2026年3月下旬
- 法令に基づくその他制限事項
- -
(社)全国宅地建物取引業保証協会
(社)近畿圏不動産流通機構
(社)近畿地区不動産公正取引協議会
(社)近畿圏不動産流通機構
(社)近畿地区不動産公正取引協議会





























